征地补偿安置方案公告 (武土征补南公告[2022]第062号)

发布时间:2022-08-23 09:15 作者: 信息来源: 武汉经济技术开发区(汉南区)自然资源和规划局

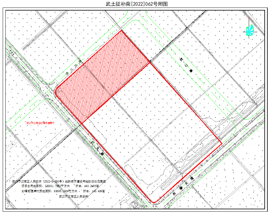
经土地现状调查和社会稳定风险评估,拟征收汉南区纱帽街道通津村的集体土地9.3606公顷。其中:农用地9.3388公顷(含耕地9.1851公顷)、建设用地0.0218公顷、未利用地/公顷,并于2022年6月1日发布了《征收土地预公告》(汉土告字[2022]062号)。

根据《中华人民共和国土地管理法》、《中华人民共和国土地管理法实施条例》等有关法律法规规定,现拟定9.3606公顷集体土地的《征地补偿安置方案》并予以公告。

自本公告发布之日起30日内,本农村集体经济组织及其成员、村民委员会和其他利害关系人可对本公告及《征地补偿安置方案》提出意见,多数被征地的农村集体经济组织成员认为征地补偿安置方案不符合法律、法规规定的,人民政府应当组织召开听证会,并根据法律、法规的规定和听证会情况修改方案。拟征收土地的所有权人、使用权人应当在公告规定期限内,持不动产权属证明材料办理补偿登记。

联系人:胡汉江               联系电话:84751682

特此公告

附:

1、《征地补偿安置方案》

2、征收土地补偿安置方案附图

武汉市汉南区人民政府

2022年8月23日

征地补偿安置方案

经土地现状调查和社会稳定风险评估,拟征收汉南区纱帽街道通津村的集体土地9.3606公顷。其中:农用地9.3388公顷(含耕地9.1851公顷)、建设用地0.0218公顷、未利用地/公顷,并于2022年6月1日发布了《征收土地预公告》(汉土告字[2022]062号)。

根据《中华人民共和国土地管理法》、《中华人民共和国土地管理法实施条例》等有关法律法规规定,现拟定上述集体土地的征地补偿安置方案如下:

一、征收土地范围:纱帽街道通津村(详见附图)。

二、征收目的:政府为了公共利益的需要,该项目用地符合土地管理法第四十五条第(二)项规定, 用地符合国民经济和社会发展规划、土地利用总体规划、城乡规划和专项规划。属于基础设施类建设活动,因我区社会经济发展的需要,确需对红线范围内集体土地实施征收。

三、征收土地现状:总面积9.3606公顷。其中:农用地9.3388公顷(含耕地9.1851公顷)、建设用地0.0218公顷、未利用地/公顷。

四、土地补偿费、安置补助费的标准

根据《省人民政府关于公布实施湖北省征地区片综合地价标准的通知》(鄂政发〔2019〕22号)文件规定,被征地区域的区片综合地价标准为72万元/公顷,合计数额为673.9632万元。

五、地上附着物和青苗补偿标准

经汉南区人民政府组织调查,拟征地范围内的集体经济组织鉴证,被征地范围内地上附着物和青鱼苗的种类、数量已调查,结果以《拟征收土地现状调查结果确认表》为准,补偿金额依签订协议确定。

六、农业人口的具体安置途径

根据通津委会出具的相关证明材料,需安置农业人口69人,具体安置途径为货币安置、社会保险安置、等多种方式。

七、关于被征地范围集体土地上房屋拆迁补偿安置

按照《武汉市征用集体所有土地房屋拆迁管理办法》(市政府令第148号)要求执行。

八、其他有关征地拆迁补偿安置的具体措施按下列规定执行

1、《武汉市征用集体所有土地房屋拆迁管理办法》(市政府令第148号)

2、《省人民政府关于被征地农民参加基本养老险的指导意见》(鄂政发〔2014〕53号)

汉南区人民政府(公章)

2022年8月23日

武土征补南[2022]062号附图.png


链接: 区人大 | 区纪委监委机关
主办单位:中共武汉经济技术开发区工委(汉南区委)党政办公室    地址:武汉经济技术开发区川江池二路军山新城春笋C栋
承办单位:武汉经济技术开发区(汉南区)城市运行管理中心    地址:武汉经济技术开发区川江池二路军山新城春笋D栋
网站技术支持:027-84853098    政府各机构联系电话(点击查询)
隐私声明 网站地图 收藏本站
备案证编号:鄂ICP备2022016438号-1 ©1997- 版权所有
鄂公网安备 42011302000122号 网站标识码:4201130014

主办单位:中共武汉经济技术开发区工委(汉南区委)党政办公室

承办单位:武汉经济技术开发区(汉南区)城市运行管理中心

备案证编号:鄂ICP备2022016438号-1©1997- 版权所有

鄂公网安备 42011302000122号 网站标识码:4201130014

无障碍功能 武汉经开区

政府服务便民热线
12345